Запасные части ЧТЗ Запасные части ЧТЗ
Нижний Новгород
Например:
Актобе
Алдан
или
Выбрать автоматически
Актобе
Алдан
Алматы
Алчевск
Архангельск
Астана
Астрахань
Атырау
Баку
Балашиха
Барнаул
Белгород
Бердянск
Бишкек
Владивосток
Владикавказ
Воркута
Воронеж
Горловка
Грозный
Донецк
Екатеринбург
Иваново
Ижевск
Иркутск
Казань
Калининград
Каменск-Уральский
Караганда
Каховка
Кемерово
Киров
Комсомольск-на-Амуре
Костанай
Краснодар
Красноярск
Красный луч
Ленск
Луганск
Магадан
Магнитогорск
Макеевка
Махачкала
Мелитополь
Минск
Мирный (Якутия)
Москва
Мурманск
Нерюнгри
Нижневартовск
Нижний Новгород
Нижний Тагил
Новая каховка
Новокузнецк
Новосибирск
Новый Уренгой
Норильск
Ноябрьск
Нур-Султан
Омск
Оренбург
Ош
Павлодар
Пермь
Петрозаводск
Петропавловск
Петропавловск-Камчатский
Псков
Ростов-на-Дону
Салехард
Самара
Санкт-Петербург
Саратов
Севастополь
Семей
Симферополь
Сочи
Ставрополь
Сургут
Сыктывкар
Тараз
Ташкент
Токмак
Томск
Тында
Тюмень
Ульяновск
Усинск
Усть-Каменогорск
Уфа
Хабаровск
Ханты-Мансийск
Херсон
Челябинск
Чита
Шымкент
Экибастуз
Энергодар
Южно-Сахалинск
Якутск
Ваш город
Нижний Новгород
Войти
Запасные части к тракторам на одном сайте
+7 (932) 303-00-10
+7 (932) 303-00-10
г. Нижний Новгород, Московское шоссе, д. 52
Пн-Пт: 9:30-18:30 Cб-Вс: Выходной
Отправить заявку


Изменения в фронтальных погрузчиках


/
с НДС 20%
Описание

в погрузчике ПК46
в погрузчике ПК65

Изменения в погрузчике ПК46

Для повышения надежность и ресурса уплотнительных узлов Уплотнительные манжеты отечественного производства заменены на манжеты Simrit ( марка материала FKM585).

февраль 2010 года - февраль 2011 года

Для устранения дефектов по течи, повышение надежности в эксплуатации Краник сливной 353-1305010-А заменен на Кран ПП6-1 ОСТ 37.001.241-81

август 2010 г.

Для повышения эффективности и надежности работы системы охлаждения двигателя введен расширительный бачок КамАЗ 5320-1311010-30, применен более мощный радиатор водяной 54115Ш-1301010-01, применен алюминиевый радиатор масляный 50К-1013010-02. Изменена конструкция блока радиаторов для снижения обдува радиатора отраженным горячим воздушным потоком от двигателя.

введен расширительный бачок КамАЗ

сентябрь 2010 г.

Для устранение дефектов по течи, повышение надежности в эксплуатации Краник проходной 2201С28-Б ОСТ 37.001.240-81 заменен на Кран ПП6-1 ОСТ 37.001.241-81

декабрь 2010 года

Для устранения нагрева масла в гидробаке, исключения перегрева и расплавления бочка омывателя увеличена площадь защитного экрана.

увеличена площадь защитного экрана

декабрь 2010 г.

Для увеличения срока службы манжет в крышке ПК65.11.01.603 выполнена проточка для лучшего отвода масла от манжет.

выполнена проточка для отвода масла

февраль 2011 года

Для удобства в эксплуатации и снижения трудоемкости при демонтаже заднего моста изменена конструкция крепления заднего моста для возможности его демонтажа без снятия двигателя.

изменена конструкция крепления заднего моста

февраль 2011 г.

Для повышения износостойкости рабочего элемента и удобства замены в эксплуатации Зуб ПК46.81.00.001 заменен на коронку 205-70-19570 с адаптером 205-939-7120.

зуб заменен на коронку

июнь 2011 г.

Для повышения износостойкости рабочего элемента и удобство замены в эксплуатации штатный зуб и адаптер заменен на коронку 205-70-19570 с адаптером импортного производства.

штатный зуб и адаптер заменен

июнь 2011 г.

Для улучшения теплоотвода из подкапотного пространства введена перфорация на листе шторки.

введена перфорация на листе шторки

ноябрь 2011 г.

Для дополнительной защиты ячеек радиатора от загрязнения введена рамка с сеткой ЧТЗ-ПК65.52.04.050.

введена рамка с сеткой

ноябрь 2011 г.

Для повышения защищенности погрузчика от брызг грязью введено увеличенное заднее крыло.

введено увеличенное заднее крыло

ноябрь 2011 г.

Для повышения степени очистки топлива заменен фильтр грубой очистки топлива 204А-1105510-Б на фильтр предварительной очистки топлива Preline PL270.

заменен фильтр грубой очистки

декабрь 2011 г.

С целью повышения надежности мостов ведущие мосты ОДМ.73.001-6 производства ЛКМЗ, Украина заменены на мосты ведущие ZL 45-1 производства фирмы «Цзинь-Чэн-МОСТ», Китай.

замена мостов

май 2012 г.

Введен ковш ЧТЗ-ПК65.81.00.300 увеличенной емкости до 5 м³.

введен ковш ЧТЗ-ПК65.81.00.300

май 2012 г.

Для удобства в эксплуатации Масло моторное 15W-40, CE SAE J 300 JUN87 и Масло М-6з/10-В ГОСТ 10541-78 заменены на Масло моторное 5W-40, CE SAE J 300 JUN870 (всесезонное).

август 2012 года

Для снижения массы погрузчика на 140 кг введен облегченный ковш ЧТЗ-ПК65.81.02.000.

введен облегченный ковш ЧТЗ-ПК65.81.02.000

октябрь 2012 г.

Для улучшения условий работы оператора в кабину введен дополнительный отопитель «Air Тор 2000 ST» (Webasto).

введен дополнительный отопитель

февраль 2013 г.

Для повышения надежности и работоспособности Крана тормозного и гидроаккумуляторов снижено давление в клапане предохранительном тормозной системы с 210 до 180 атм.

март 2013 г.

Введен ковш общего назначения ЧТЗ-ПК65.80.00.300 увеличенной емкости до 4,5 м³.

март 2013 г.

Изменения в погрузчике ПК65

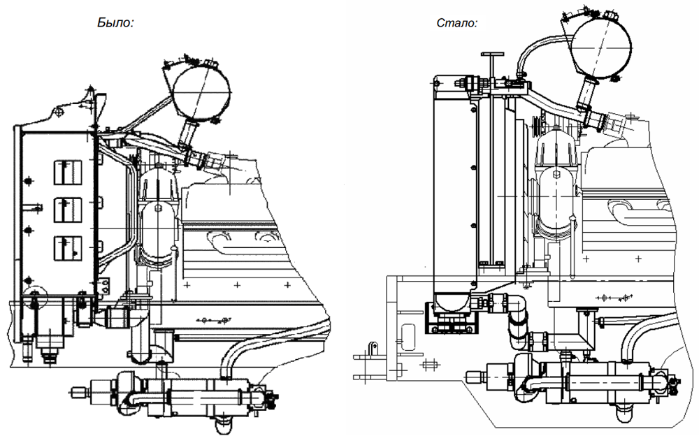
С целью повышения надёжности системы охлаждения погрузчика ПК65 с двигателям ЯМЗ-238М2-51 (компл. 238М2-1000175-51) ЯМЗ-236 применён фронтальный радиатор фирмы «HYDAC».

применён фронтальный радиатор HYDAC

Применение фронтального радиатора обеспечивает:

  • повышенный теплосъём;
  • высокие прочностные свойства;
  • снижение металлоемкости и массы.

Было:

  • радиатор водяной 54115Ш-1301010-01 - 1 шт ;
  • радиатор масляный 50К-1013010-02 ТУ 34 30-052-22593845-2009 - 2 шт.;
  • радиатор масляный РМ-Т040-1013017 - 1 шт.

Стало:

  • Блок радиаторов - CMS/OWТЕ/СНТ/1/866-13(3883997)

2014 г.

Для увеличения надежности открывания (закрывания) капота, удобства в обслуживании и снижения металлоемкости применены новые замки, в задней створке лобовины газовые упоры заменены на петли.

применены новые замки

2014 г.

Для упрощения конструкции, снижения металлоёмкости, повышения удобства обслуживания убраны газовые упоры, старые замки сложной конструкции заменены на новые покупные, введена новая стойка.

убраны газовые упоры

2014 г.

шторка капота

2014 г.

С целью повышения надёжности системы охлаждения погрузчика ПК65 с двигателям ЯМЗ-238М2-51 (компл. 238М2-1000175-51) взамен радиаторов 54115Ш-1301010-01 - 1 шт , 50К-1013010-02 ТУ 34 30-052-22593845-2009 - 2 шт., РМ-Т040-1013017 – 1 шт. применён фронтальный блок радиаторов БР-70Б.1301.000 ООО «Оренбургский радиатор».

Применение фронтального радиатора обеспечивает:

  • повышенный теплосъём;
  • высокие прочностные свойства;
  • снижение металлоемкости и массы.

Замена радиаторов в системе охлаждения

декабрь 2015 г.

С целью улучшения центрирования соединяемых деталей, уменьшения количества деталей в узле, повышения надежности при динамических нагрузках и возможности передачи больших вращающихся моментов за счет большей поверхности контакта, шпоночное соединение заменено на шлицевое.

Замена шпоночного соединения на шлицевое

2015 г.

Для упрощения смены рабочего оборудования в конструкции погрузчика предусмотрена возможность установки быстросъемного устройства - квик-каплера БКК-2-QF.

Увеличение возможности установки различного типа рабочего оборудования

2015 г.

На фронтальном погрузчике установлен фильтр «Pre Line PL 270» фирмы MANN+HUMMEL предварительной очистки топлива.

С целью улучшения работы фильтра «Pre Line PL 270» в регионах с холодным климатом используется возможность подогрева топлива в фильтре. Встроенный в фильтр «Pre Line PL 270» подогреватель с напряжением 24 В и мощностью 350 Вт служит для подогрева топлива, что предотвращает образование парафина в фильтре при минусовых температурах.

2015 г.

Защита фар от механических повреждений.

Установка защиты фар

2015 г.

Защита узлов трансмиссии и гидравлических систем от механических и термических повреждений (по требованию потребителя).

Установка защиты трансмиссии

2015 г.

Изменения в фронтальных погрузчиках